ウッドデッキは、住まいや庭に自然のぬくもりと開放感をプラスする空間づくりの要です。当社では、耐久性やデザイン性に優れた木材・人工木を用い、お客様のライフスタイルや敷地条件に合わせた設計・施工を行っています。アウトドアリビングとして食事や読書、家族の団らんなど、日常に豊かな時間を楽しんでいただけます。木の温もりと自然素材の魅力を活かしたウッドデッキは、住まいの価値を高めるだけでなく、暮らしに心地よい癒やしの空間を提供する事業です。
一工務店の取り組み
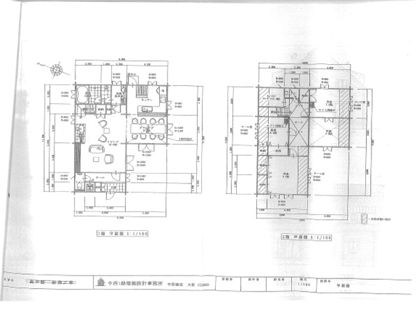
株式会社一工務店では、ログハウスの設計・提案・施工まで幅広く対応しており、一人ひとりのお客様のご要望をお聞きしながら、理想の住まいづくりを手掛けております。ログハウスに関することは、幅広く対応しており、長年の実績や豊富な知識があるため、様々な提案が可能です。是非不明な点やご要望があれば、お気軽にご相談ください。
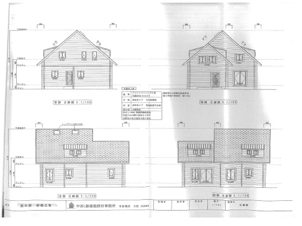
新築事業
株式会社一工務店では、ログハウスに関する新築事業を手掛けております。軽微なリフォームから、大規模な間取り変更や住宅設備の入れ替えを伴うリノベーション工事まで幅広く対応しております。ログハウス風にリフォームしたいなどのご要望にも対応可能ですので、是非一度ご不明点やご相談があれば、お気軽にご連絡ください。
ウッドデッキ
増築
株式会社一工務店では、既存のログハウスに自然素材の魅力を活かした空間を追加し、暮らしの快適性とデザイン性を向上させます。増築では、デザインもそうですが、雨漏りや隙間風などのトラブルが発生しないような丁寧な施工が必要です。また、耐震・防腐・メンテナンス面にも配慮し、長く安心してお使いいただける空間づくりをサポートします。





